
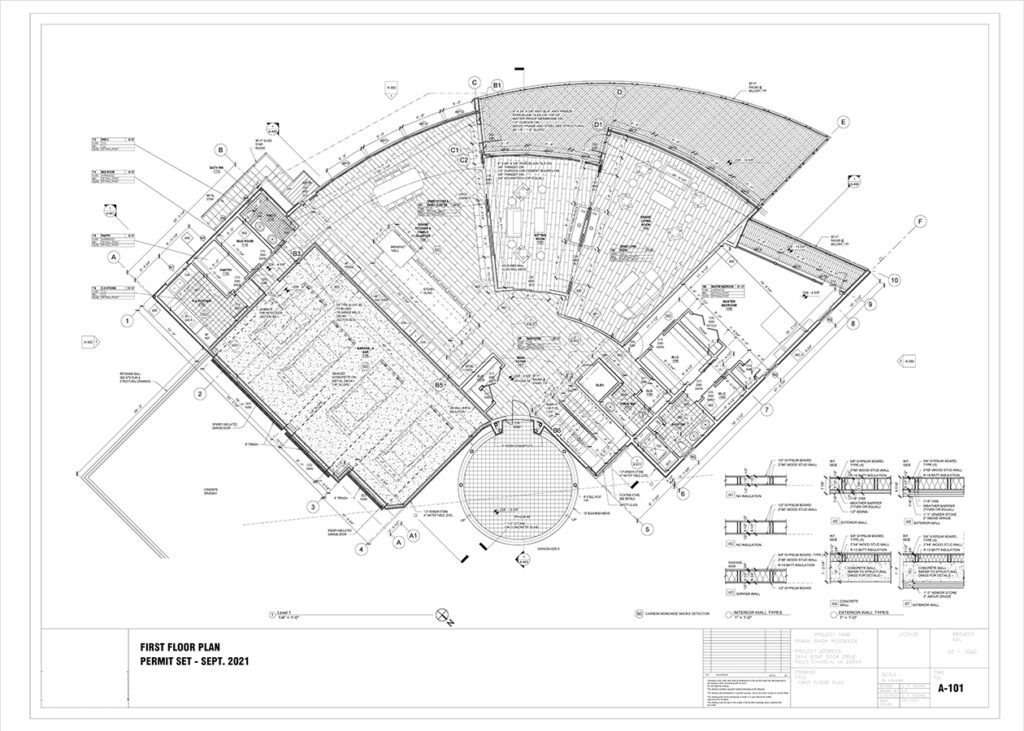
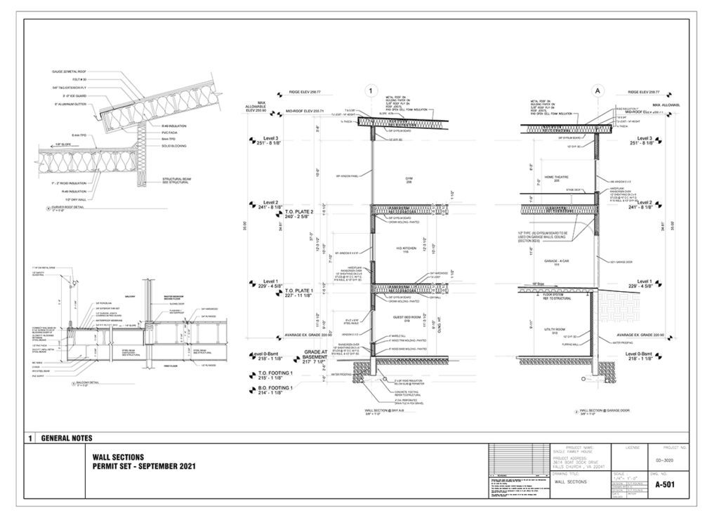
Boat Dock House
Welcome to our breathtaking single-family house in Virginia, where modern living harmonizes with nature's beauty. With its special arch roof gracefully embracing the lakeside, this residence offers a captivating and serene retreat like no other.





